

For the past 39 years, the Maiden family have run Washworld, a self-service carwash on a prominent site in Saint Lukes, Tāmaki Makaurau Auckland. If you don’t know it, this busy spot is one of those places where the city most resembles Los Angeles: a four-lane road, a featureless mall, big-box retail, a petrol station; a lot of visual noise. Amidst this busy-ness sits a quiet building, plastered grey concrete and timber, tucked into one corner of its site.
It’s been a long time coming. For four decades, Matthew Maiden – whose dad set up the first automatic carwashes in Aotearoa back in the 1970s – hasn’t really had any storage on site. He and his team, remarkably, have also never had their own ablutions facilities. Instead, his garage and a storage unit were stocked full of cleaning products, and the team dashed over the road to the Westfield mall when nature called.
There were discussions over the years about building something on the site. Eventually, Matthew asked his son Ben Kevey-Maiden – a builder who has worked on a number of houses featured in this magazine – if he knew anyone who could draw up a concept. Kevey-Maiden got in touch with architect Ben Lloyd, of Lloyd Hartley. “I rang Ben and said, ‘We need a shed, would you design a shed?’ And he said, ‘Not really, but I would for you.’”
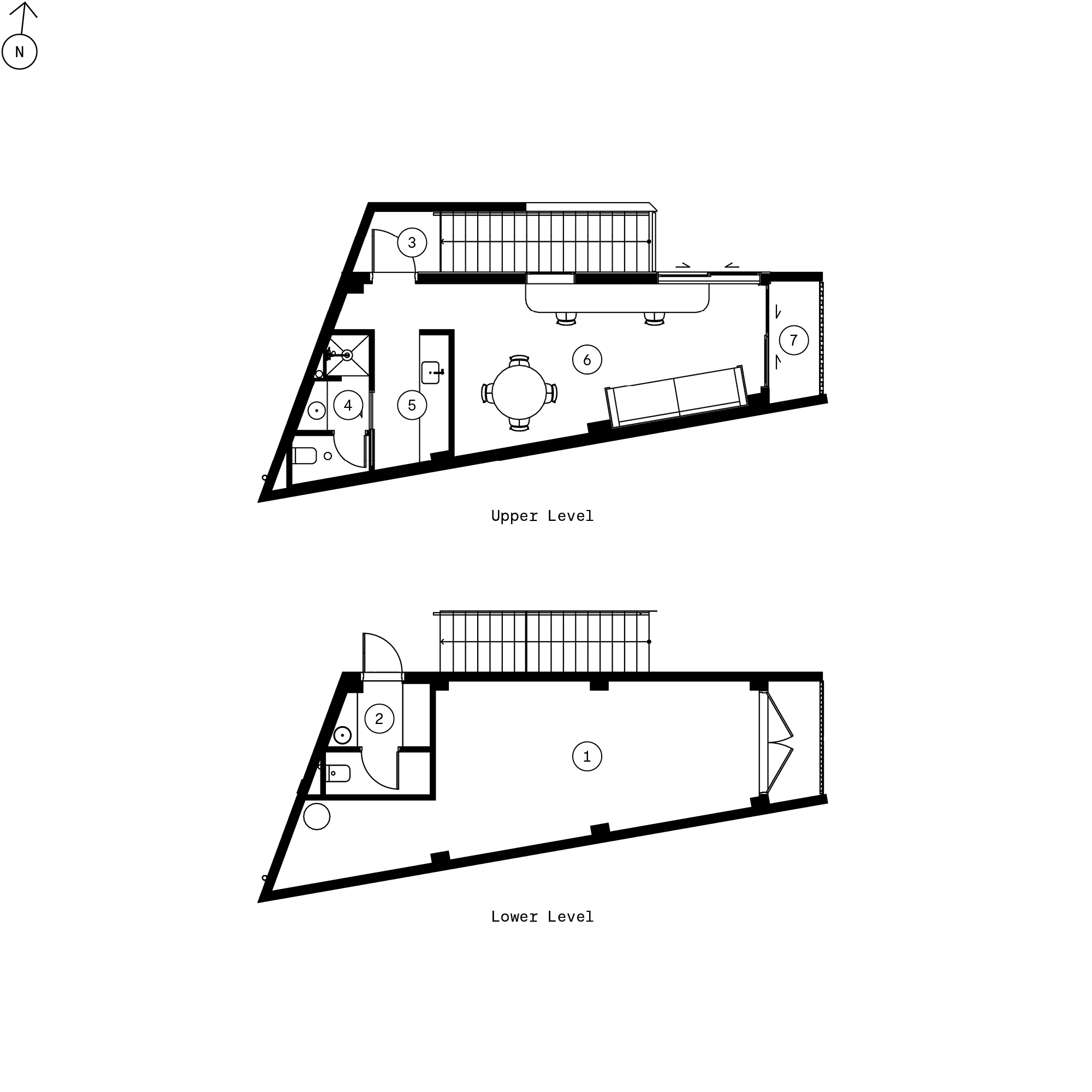
When they visited the site, father and son had marked out a shape, “a kind of rhombus”, in a corner – the only available land. “That became the footprint of the building itself,” says Lloyd. “It was the only thing that wasn’t paved or in use by the carwash.” As Kevey-Maiden remembers it, they decided pretty quickly that they should have a three-metre stud downstairs in the shed, and then it became an easy thing to build up into the trusses to create a second storey. Downstairs: storage and ablutions. Upstairs: a flexi space that could be office or studio. ‘We knew what we wanted, which was a store room, office, workshop, lunch room,” says Matthew. “Without our son as our builder it would have been a Skyline garage.”
Still, Lloyd’s design was straight-out simple: a plastered concrete base with a lighter top clad in steel corrugate and timber sarking, the two levels connected by an external concrete staircase. At ground level, it’s bullet-proof, with steel gates closing off the stairs and access to the bathroom. Upstairs, it’s more playful, with blush-pink cabinetry and similarly hued tiles. “It needed to be a pretty robust building on the ground floor,” says Lloyd, “and then we could lighten it upstairs.”
Practically speaking, it’s relatively basic. The ground underneath is almost solid volcanic rock from nearby Ōwairaka, so the building sits on shallow foundations, held down by its own weight. U-shaped concrete structural beams run along the floor and up the sides, tied with steel beams; the top is much more lightweight. The floating staircase is a feat in and of itself, poured in-situ, with no poles underneath.
With its back to the south and windows to the north and west, the design captures the sun, basking in afternoon light. “I liked the idea of it being able to wedge back and sit comfortably against all the other buildings,” says Lloyd. “Almost all of the things that we think about doing in a little house, we put into here, because its upper level is a kind of little house in itself.”
The building was built by Kevey-Maiden, over a few years, and in such a way that the carwash business remained largely undisturbed. His dad is very proud of the building – and that his son built it. “It’s just so much easier to run the business,” says Matthew. “And the staff love it too.” Proof, if there was any doubt, that good architecture can be both beautiful and functional.





1 Storage
2 Staff Facilities
3 Entry
4 Bathroom
5 Kitchen
6 Office
7 Deck