

The owners of this two-bedroom house in Ōtautahi didn’t set out to build. They were hunting for a first home that would suit their active lifestyle, their dog and eventually a family, but Christchurch open homes were proving fruitless. Changing tack and looking for land, they came across this Heathcote Valley plot. Once an orchard (a scattering of fruit trees still lingers), their section sits within a small cluster of homes at the base of the Port Hills. It backs onto a seemingly endless web of walking trails with views stretching across the surrounding peaks to the city and the mountains beyond. Determined to create something “robust but special” on the site, they quickly dismissed home-building companies due to their lack of flexibility and originality, and took their modest, first-home-buyers budget to Pac Studio.
Pac’s design process begins with a bit of lifestyle anthropology. It’s a deep dive into how the clients live, the experiences they want to have in the house, the atmosphere they want to create, right down to the minutiae of where they take their coffee. “We unpick the wider motivation for the project, the thoughts and feelings going into it and then design to meet that,” says Pac Studio’s Sarosh Mulla. “It’s so much more than their likes and dislikes… though it is important to know what they hate.”
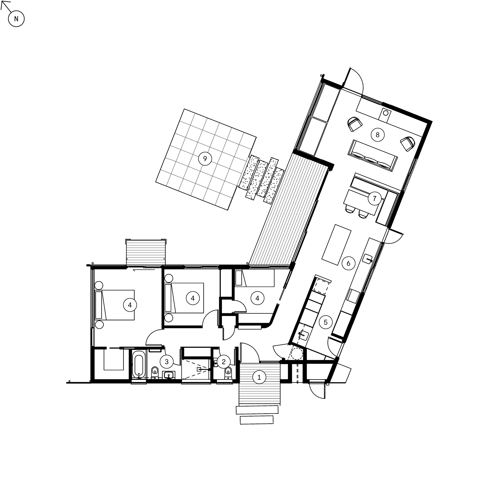
The result is a home tailored not just to function, but to atmosphere and daily ritual. Laid out in a boomerang form, with private spaces in one wing and public ones in the other, its central position on the site (partly dictated by easements) encourages a natural relationship with the land. With a park nearby, there’s no need for a lawn. Instead, a free-spirited garden inches right up to the house. Views are uniquely framed, out to the hills and down the guts of the valley. Openings on all sides of the home offer both shelter and an open invitation to the outdoors.
The couple’s budget constraints demanded efficiency: simple geometry, generous proportions, but no wasted space. The design deploys standard materials, laid out to meet module sizes and minimise waste. “Picking our battles about what could be simple and what to invest in was key,” Mulla says. By keeping the form relatively uncomplicated, the architect had scope to lean into moments of craft and beauty – as with the cabinetry.
Made by Michael Gilling, of Xylo Woodcraft Studio, the central bank of American cherry joinery serves multiple functions. At the entrance, its tall plywood panels form the hallway wall, leading you into the heart of the home. On the other side, it’s the spine of the kitchen, housing the pantry, laundry, storage, and hot-water cupboard. Playful hand-crafted door pulls add a casual touch to an otherwise sophisticated finish. “We’re always trying to find those little moments of joy out of what could have been standardised parts,” says Mulla. The slim light shelf suspended above the kitchen is another standout. “One of the clients is a florist, so we knew there would always be flowers in and around the house. This was about creating a spot to celebrate that.”








The timber elements break up the volume of the tall room, while a built-in banquet and a deep daybed conceal plenty of storage and define the dining and living areas within the open plan. Windows and doors along the back wall capture the hilltop views before the sloping ceiling draws the eyeline down to the garden up front. “We knew the house would be a backdrop for a huge amount of colour in the garden, so we used green metal and brown timber on the exterior, two colours which naturally suit the wider context,” Mulla explains. The cheery yellow awnings (which one client refers to as “the MVP of the house”) add a pop of colour against the home’s honest tones, and play an essential role in sun control.
It’s reassuring to see that old-school, manual solutions still stack up. “It’s testament that even with all of the technology we use in our work, you still have to be open to the discovery of stuff, finding other moments of fun,” says Mulla. Another such discovery came about during a construction walkthrough. The team was admiring the bathroom’s view of Te Tihi-o-Kahukura Castle Rock when Mulla realised that by punching a small hole in the bedroom wall, aligning it with that high bathroom window, they could get the view twice. Rather than leave it as a simple void, Gilling fashioned a wooden hatch that opens it up like an ever-changing artwork.
At a relatively modest 124 square metres, the floorplan demonstrates the role of savvy planning and spatial awareness. It also shows that a family home doesn’t require all the extras. There’s no ensuite, but a second WC. No laundry, but a discreet washer-and-dryer cupboard. No garage, but a carport and additional off-street parking. The couple welcomed their first child just after they moved in, “so one non-negotiable became a back door,” says Mulla. “A family home needs that space where you can get whatever gross things the kids are involved in straight into the laundry cupboard.” Amen.
Other family-centric considerations include separation but proximity between the bedrooms, plenty of storage, hard-wearing materials, and a concrete slab floor that cools and warms, is great for thermal mass, and easy to clean with a dog and baby. The home is brave in its interior colour choices and makes provisions for the future, with scope for the office to become a third bedroom and a logical way to stitch another room onto the end of the living space, if they’re ever so inclined. “We’re aware that one day there could be expansions on our project, so we like to think how cohesive we can make that – without it looking like some weird carbuncle latched on,” explains Mulla.
“To me, the project is an archetype of how great a first home could be,” he continues. “People, not unreasonably, think of architecture as expensive, but if you go into the process with a clear aim, you can work together to get to something quite special for the same cost as a standardised group-home build. It’s about picking your battles, doing some bits simply and then working out where the joy is.”







1 Entry
2 Powder
3 Bathroom
4 Bedroom
5 Laundry/Utility
6 Kitchen
7 Dining
8 Living
9 Terrace