

To listen to Charlotte Ryan's playlist inspired by this house, click here. Presented in the palest pink and scattered with feathered shadows cast by a ring of pōhutukawa, this house on a prominent corner in the coastal settlement of Point Wells is as much public as private. When word got out that construction of the dwelling was imminent, neighbourhood tongues started wagging. Residents were concerned: the site, steps from a jetty where kayakers push out into the tidal estuary, old-timers instruct newbies on netting for flounder and children wander down for a swim, had been unoccupied for decades.
Philip and Lesley Lindesay, founders of Lindesay Construction, who have owned a cider orchard and lifestyle block in the area north of Auckland for 40 years, were out cycling one day when they spotted a ‘For Sale’ sign on the overgrown section. And saw their future.
Pac Studio, in tandem with Steven Lloyd, received the brief to design a light, sunny home linked in spirit to the water and in practice to the community (effectively, a local landmark) with equanimity. They listened as the Lindesays talked about the verandah bungalows seen on their travels through the South Pacific. They instinctively understood the ‘easy street’ vibe the couple were after and championed their clients’ interest in passive houses. And a pink exterior? Well, why the hell not.
“Write that it’s a spectacle of light and shadow,” suggests Pac Studio director Aaron Paterson. “That’s the crux of it.” Well, yes. But getting to this dynamic state of interplay has called for both brave and contained moves; there’s a fluid balance between outward-looking and insular design.
Timber louvres that skirt verandahs are one ace in the architectural deck. They give the dwelling a kinetic skin so the owners can play with porosity. Aesthetically, they conjure up the tropics. The louvres open, close, slide and slant in myriad ways to soften a brumal breeze, allow in air or start a conversation with a passing acquaintance or total stranger. Important, too: they set up a sequacious rhythm within their steel frames. “It’s an 1800mm module – very rigorous,” says Lloyd, before adding: “You make these rules for yourselves and occasionally you break them.”
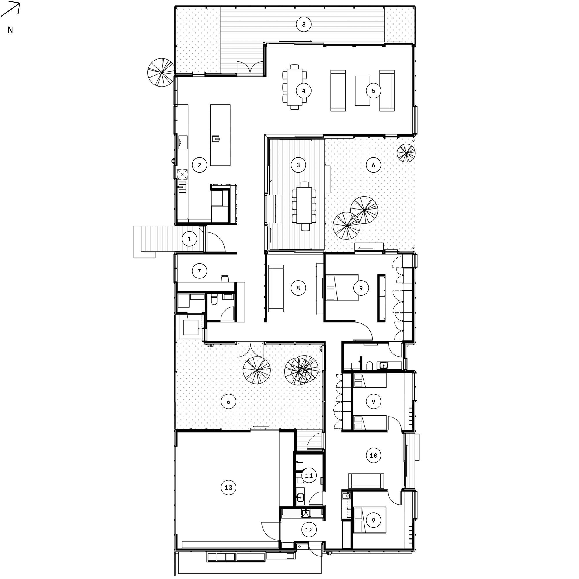
The louvre grid is mirrored in elements throughout, but particularly the exposed steel trusses which support a lightweight roof. While this sets up a regular (if not always strictly observed) cadence in the building, there’s also a sinuous flow. Rooms wrap around a couple of interior courtyards in a big, lazy S-shape. “It makes for some unusual circulation on axes that don’t appear on the grid,” explains Lloyd. “For instance, you can duck through the TV room, then through a courtyard to the dining area.”






Carving out spaces to enjoy when the northerly whips off the ocean or the wind blows in from the river was important. Within these courtyards, Jonathan Fulton of Fulton Landscaping has achieved a modern-tropical mood; existing palms tower over crazy paving tapestried with large-leaved fans, fragrant gingers, frangipani, the orange spikes of strelitzia and the lashing tongues of sansevieria.
An immediacy of connection to these pocket gardens was paramount, but so was a close visual bond with the pōhutukawa that bound the site. These were carefully picked around during the building process and now clerestory windows that kick up to three metres allow eyes on the prize. “They’re set on an angle that aligns with the trees so, when you tilt your head to look up, there’s no distortion,” says Paterson. Inside, this has the effect of evaporating the roof; there’s nothing to detract from the branches that stretch overhead. Leaf-like patterns dance across the walls and oak floors, while the roof edge casts a slow-moving, crinkle-cut shadow. This aluminium sheaf with exposed detail, which Lloyd describes as a “corrugated aerofoil”, is a graceful lid on the dwelling, a contemporary take on the material commonly used in Pacific architecture and bach construction.
The owners, who bought the section in 2017 and then spent years choosing the Resene ‘Half Pot Pourri’ shade that would transport the soft blush of a Tahitian villa to this special corner of the village, are well pleased. Within the neutral, light-as-air canvas there is space enough for their keepsakes, including a wall of 1840 lithographs by Philip’s great-great-great-grandfather and open shelving for collectibles such as the wooden yacht made by a dextrous uncle for a little boy who loved the water. A home office keeps them in touch with the business, a workshop with access to the eastern courtyard is a tinkerer’s dream, a wing for guests readily accommodates four grandchildren and the gardens are paradise found – minus the travel costs.
On Sunday mornings, the owners like to read the newspaper while enjoying a coffee on one of the sheltered decks. Making breakfast in the kitchen, with the windows thrown open, is a social event. Should a friend or neighbour walk by, they might stop for a chat or pop in for a cuppa. The pink house on the corner has become integral to the physical and social landscape – a rose-tinted box of connection.






1. Entrance
2. Kitchen
3. Deck
4. Dining
5. Living
6. Courtyard
7. Study
8. TV room
9. Bedroom
10. Family room
11. Bathroom
12. Laundry
13. Garage
Related Stories: